宿舍是我們共同生活的家,為使住宿環境兼具學習交流與創意機能,學校參與教育部「新世代學生住宿運動」 (https://www.dormtw.com/) 進行公共空間改造。在歷經嚴謹之證照申辦審查程序,現已進入招標階段,依進度推估將於今(115)年9月開工。 為讓計畫申請下(115)學年度住宿的同學能知悉此情形,並了解施工對住宿生活可能會發生的影響,我們提供現階段預擬之施工規劃向大家說明,最終資訊待發包確定後即會另行公告。
⚠️ 重要提醒:以下為現階段施工規劃,最終資訊待正式發包確定後另行公告。
一、預計施工期程與時段
- 施工期程:預計115年9月至117年12月
- 施工時間:預計週一至週五08:00~18:00(進行重要工項)
- 週末原則不施工:若有施工需求須先向校方提出申請獲准,並以靜音、低噪音工項為主,以保障同學的休息時間。
二、 施工範圍
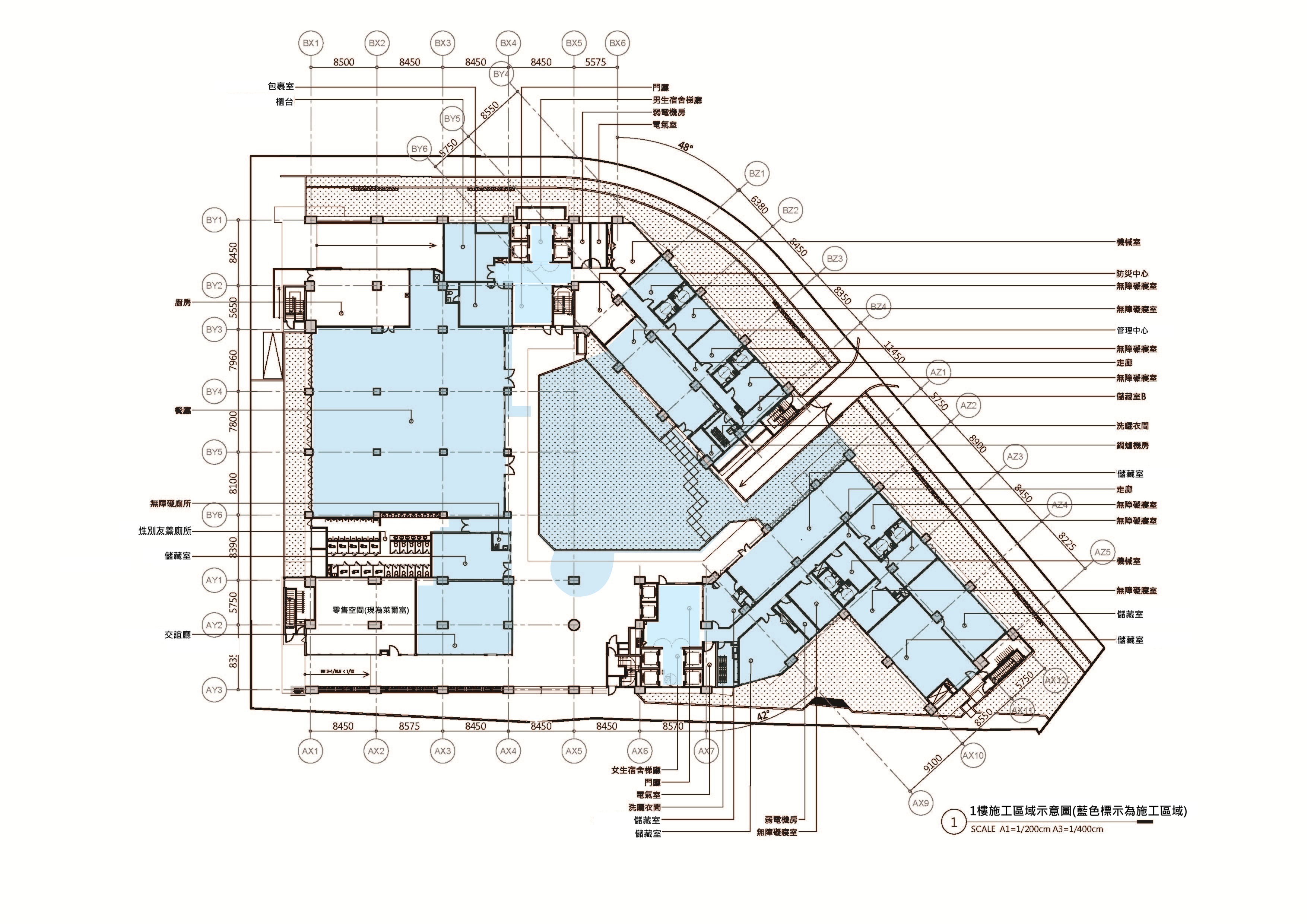
- 1樓:交誼廳、餐廳(不含廚房)、櫃台、包裹室、梯廳、管理中心、無障礙寢室、儲藏室及戶外廣場。(詳附圖1)
- 2~18樓:交誼廳、閱讀室、洗曬衣間、簡易廚房、儲藏室、梯廳、陽台、廊道。(詳附圖2)
三、預計施工規劃說明:
- 分批依序施工:原則規劃優先進行2~18樓工程,接續再依序進行1樓及戶外工程。
- 分層輪替施工:
- 為兼顧同學住宿及工程進行,2~18樓擬規劃採「一次三層樓」為單位,由高樓層(18樓)向下分層輪替施工。
- 考量同學居住安全及生活品質,施工樓層於作業期間將封閉暫停住宿,俟完工後再開放由下方待施工樓層的同學搬遷入住,另鄰近電梯、交誼廳等部分易受干擾的房間亦將依施工期程逐步改建整併為公共空間(房號詳附件1)供大家共同運用,預計將關閉約700個床位。
- 於每階段施工啟動前,將提前發布公告提醒。
- 電梯使用:工料搬運與廢材清運需要男、女二舍各提供1台電梯(非無障礙電梯)使用,將會在考量同學需求及安全之前提下,審慎研議使用方式。
- 低擾工法:規劃優先採用「材料預製、現場組裝」及「乾式施工法」,盡量將粉塵與噪音影響降至最低,
- 安全管理:規劃施工人員須實名登記並穿著識別背心,門禁卡控管限量提供,並加強保全人員巡邏,落實安全管控。
改變雖然帶來挑戰,卻也開啟了蛻變的可能。我們深知工程將對大家的日常生活帶來許多不便,懇請大家的理解、耐心與支持,若有任何問題或需要協助,請隨時與我們聯繫!
學生住宿服務中心 敬啟
115.03.31


